
KW PARTNERS vous propose en vente : Maison de ville à réinventer – Quartier Palais du Luxembourg
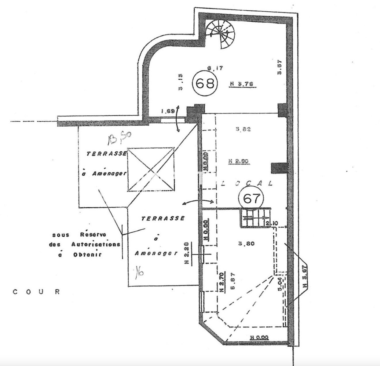
Imaginez créer votre propre havre de paix dans un écrin historique parisien. À deux pas des jardins du Luxembourg, dans une ruelle discrète et pleine de charme, se cache une véritable perle à rénover : une maison de ville de 77 m² à usage mixte (bureaux possibles) répartie sur 3 niveaux, prête à renaître sous votre impulsion.
Dès l’entrée, un vaste salon lumineux vous accueille au rez-de-chaussée, accompagné d’une cuisine et d’un espace salle à manger. L’ensemble appelle à être repensé, décloisonné ou sublimé selon vos envies.
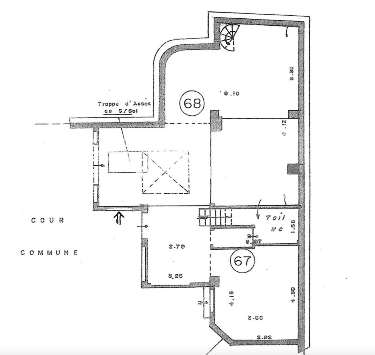
À l’étage, une chambre s’ouvre sur une terrasse privative, un véritable luxe en plein cœur du 5e arrondissement. La mezzanine, quant à elle, offre un espace flexible, parfait pour créer un bureau, un atelier ou une chambre d’appoint.
Au second et dernier étage, vous découvrirez une seconde chambre avec sa salle de bains attenante, à moderniser pour en faire un cocon paisible sous les toits. Ce que vous offre cette maison : Une adresse exceptionnelle, entre patrimoine et vie de quartier Un cadre de vie confidentiel, au calme absolu Le potentiel de tout refaire à votre image Une liberté d’aménagement rare à Paris
Vous aimez projeter, dessiner, façonner les lieux à votre goût ?
Cette maison est votre toile blanche. Les travaux sont à prévoir, mais le résultat en vaudra chaque effort.
Charges mensuelles : 220 € (copropriété de 42 lots) Honoraires à la charge du vendeur
Pour plus d'information contacter votre agent Keller Williams au 07.81.33.51.31 ou par mail au adrien.tracanelli@kwfrance.com Agent commercial - EI - RSAC : N°951 306 307 EI Paris
N'hésitez pas à suivre votre agence KW PARTNERS sur les réseaux sociaux pour plus d'actualités. * INSTAGRAM : kw_partners * FACEBOOK : Keller Williams Partners * LINKEDIN : KW Partners
Les informations sur les risques auxquels ce bien est exposé sont disponibles sur le site Géorisques : www.georisques.gouv.fr.
Montant estimé des dépenses annuelles d'énergie pour un usage standard
Entre 2760 € et 3790 € par an
Prix moyen des énergies au 2023-01-01 (abonnement compris)
Honoraires à charge du vendeur.
Nos honorairesLes informations sur les risques auxquels ce bien est exposé sont disponibles sur le site Géorisques: www.georisques.gouv.fr
Référence | 412092 |
---|---|
Référence | 7074049 |
Catégorie | Maison |
Meublé | Non |
Nombre de chambres | 2 |
Nombre de salles de bain | 1 |
Garage | Non |
Terrasse | Oui |
Parking | Non |
Surface habitable | 77 m² |
Cuisine | Oui |
---|---|
Type de cuisine | kitchenette |
WC (nombre) | 1 |
---|---|
Pièces (nombre) | 5 |
Procédure en cours | Non |
---|
Certificat d'électricité (oui/non) | non |
---|---|
Estimation des coûts/annuels minimum (prix) | 2760 € |
Estimation des coûts/annuels maximum (prix) | 3790 € |
Année de référence pour le calcul des coûts | 2023 |
Classe DPE | G |
---|---|
DPE (Kwh/m²/an) | 597 |
Émission GES (émission CO2) | 131 |
Date de réalisation du DPE | 02/03/2023 |
Type d'honoraire | Honoraires à la charge du vendeur |
---|---|
Numéro de mandat | 1574 PM |
Objet du mandat (type) | Mandat de vente |
Quote-part annuelle des charges (montant) | 30.25 € |
---|---|
Nombre de lots | 42 |
Point de rendez-vous pour la visite en ligne (détails) | ok |
---|