
ÉLÉGANT APPARTEMENT FAMILIAL - 204 m2 - Rue Boissière / Trocadéro proche métro 9 (Iéna)
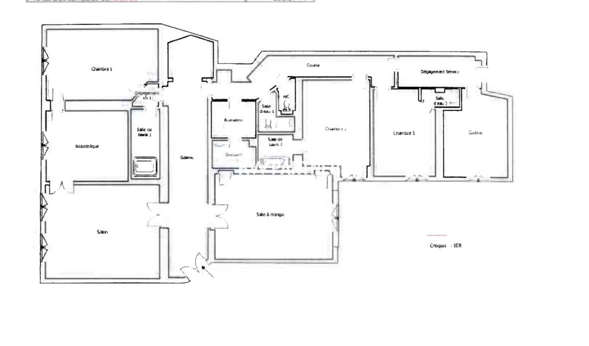
KWPARTNERS vous présente en NOUVEAUTÉ : Un appartement de 6 pièces idéalement situé à proximité du Jardin du Trocadéro, cet appartement de 204 m2 allie charme de l'ancien et rénovation contemporaine (2018).
Situé au 1er étage, il bénéficie d'une belle hauteur sous plafond et d'un environnement calme et très lumineux car très peu de vis à vis. Disposition et prestations Galerie d’entrée ouverte à l’ouest sur un spacieux salon avec vue dégagée sur une impasse Cuisine dinatoire élégante, côté est, donnant sur une large cour fleurie, au calme
Suite parentale avec rangements Grand bureau ou chambre supplémentaire Chambre avec salle d’eau Alcôve idéale pour un espace détente ou un coin lecture/jeux Buanderie et nombreux rangements
Appartement indépendant inclus Un petit appartement attenant, avec une entrée indépendante, composé d'une chambre, salle d’eau, cuisine dinatoire et WC. Il peut être loué ou intégré à l’appartement principal pour créer une 4ème ou 5ème chambre.
Grande cave de 30 m2 Un bien rare, conjuguant cachet et modernité, au cœur du 16ème arrondissement.
Pour des photos et plus d'information contacter votre agent Keller Williams au 07.81.33.51.31 ou par mail au adrien.tracanelli@kwfrance.com Agent commercial - EI - RSAC : N°951 306 307 EI Paris
N'hésitez pas à suivre votre agence KW PARTNERS sur les réseaux sociaux pour plus d'actualités. * INSTAGRAM : kw_partners * FACEBOOK : Keller Williams Partners * LINKEDIN : KW Partners
Les informations sur les risques auxquels ce bien est exposé sont disponibles sur le site Géorisques : www.georisques.gouv.fr.
Les informations sur les risques auxquels ce bien est exposé sont disponibles sur le site Géorisques: www.georisques.gouv.fr
Référence | 370242 |
---|---|
Référence | 7075859 |
Catégorie | Appartement |
Meublé | Non |
Nombre de chambres | 4 |
Garage | Non |
Terrasse | Non |
Parking | Non |
Surface habitable | 205 m² |
Cuisine | Oui |
---|---|
Type de cuisine | Super-équipée |
Taxe foncière (montant) | 2573 € |
---|
Procédure en cours | Non |
---|
Gaz | Oui |
---|
Certificat d'électricité (oui/non) | oui, conforme |
---|---|
Année de référence pour le calcul des coûts | 2015 |
Électrique | 10/01/2017 |
Gaz | 10/01/2017 |
Classe DPE | E |
---|---|
DPE (Kwh/m²/an) | 267 |
Émission GES (émission CO2) | 70 |
Date de réalisation du DPE | 10/01/2017 |
Pièces (nombre) | 6 |
---|
Type d'honoraire | Honoraires à la charge de l'acquéreur |
---|---|
Numéro de mandat | 1201 AT |
Objet du mandat (type) | Délégation/Substitution de mandat |
Point de rendez-vous pour la visite en ligne (détails) | OK |
---|