
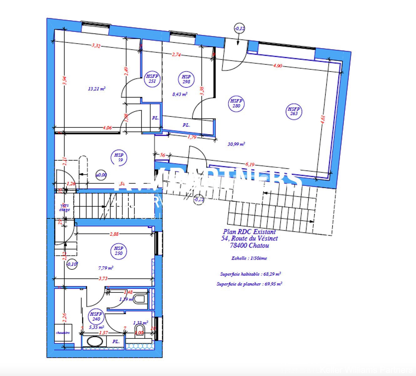
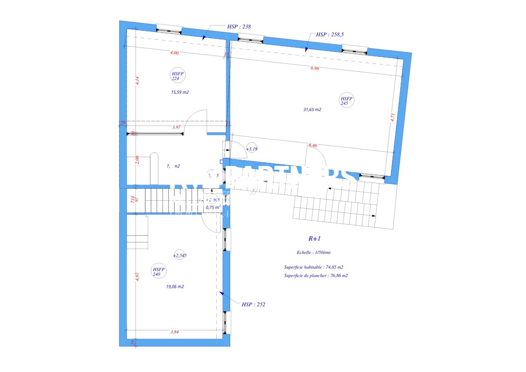
KW Partners présente une maison individuelle à usage mixte (commercial et habitation) édifiée sur un terrain de 180m2. Elle est organisée de la manière suivante : - Au rez-de-chaussée, un local commercial de 68m2 vendu loué avec escalier menant au 1e étage - Au premier niveau, un local commercial de 74.85m2 vendu loué. Ce niveau dispose également d'une entrée indépendante. Chauffage avec pompe à chaleur et climatisation. Les 2 étages peuvent être séparés. Les lots du RDC et du R+1 sont loués pour un montant de 38 386 € HCHT/an - Sous combles, un appartement vendu loué de 39.52m2 carrez (58.62m2 au sol). Ce bien est loué pour un montant de 7 582 € HC / an. Chauffage gaz. - Un sous-sol de 23m2 Petite cour permettant de stationner 2 véhicules. Le terrain comprend une servitude de passage. Assurance PNO : 504 € Annuel. Taxe foncière 2023: 2 234 € Contactez-moi au 06 14 08 53 63 ou par mail laurent.poirieux@kwfrance.com
Montant estimé des dépenses annuelles d'énergie pour un usage standard
Entre 2961 € et 2961 € par an
Prix moyen des énergies au 2023-01-01 (abonnement compris)
Les informations sur les risques auxquels ce bien est exposé sont disponibles sur le site Géorisques: www.georisques.gouv.fr
Référence | 362161 |
---|---|
Référence | 7071709 |
Catégorie | Immeuble à usage multiple |
Garage | Non |
Parking | Non |
Surface habitable | 184 m² |
Taxe foncière (montant) | 2234 € |
---|
Procédure en cours | Non |
---|
Gaz | Oui |
---|
Certificat d'électricité (oui/non) | non |
---|---|
Estimation des coûts/annuels minimum (prix) | 2961 € |
Estimation des coûts/annuels maximum (prix) | 2961 € |
Année de référence pour le calcul des coûts | 2023 |
Électrique | 22/12/2023 |
Gaz | 11/12/2023 |
Classe DPE | D |
---|---|
DPE (Kwh/m²/an) | 274 |
Émission GES (émission CO2) | 34 |
Date de réalisation du DPE | 22/12/2023 |
Type d'honoraire | Honoraires à la charge de l'acquéreur |
---|---|
Numéro de mandat | 1095EK |
Objet du mandat (type) | Mandat de vente |
Point de rendez-vous pour la visite en ligne (détails) | ok |
---|